JANNIN Virginie Négociatrice
Télécharger la fiche

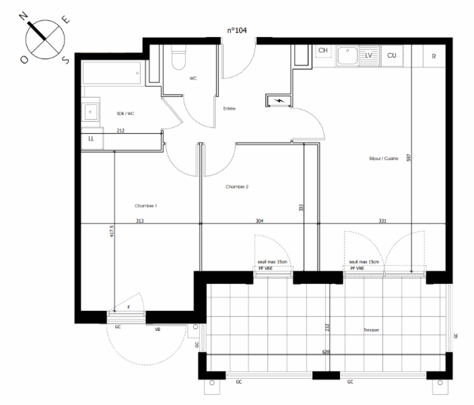
Appartement 3 pièce(s) 2 chambre(s) 57.57 m²

Rognes (13840)
321 600 € Référence 132

A propos de ce bien

Au cœur du charmant village de Rognes, découvrez ce bel appartement 3 pièces neuf situé au 1er étage d'une petite résidence intimiste.

Cet appartement offre une surface habitable de 57,57 m², parfaitement agencée, et prolongée par une agréable terrasse de 14,57 m², idéale pour profiter des beaux jours.

Il se compose de :

  • Une entrée avec dégagement
  • Un séjour avec cuisine ouverte lumineux de 21,25 m²
  • Deux chambres confortables (13,12 m² et 10,12 m²)
  • Une salle de bains 
  • Un WC indépendant
  • 2 places de stationnement

 

Les atouts

 

Terrasse généreuse, véritable extension de l’espace de vie

Résidence à taille humaine (20 logements seulement)

Prestations de qualité : double vitrage, volets roulants électriques, carrelage, visiophone, ascenseur, stationnement sécurisé

Environnement calme et résidentiel

À seulement 300 m du centre du village, commerces, marché, écoles et services accessibles à pied

Livraison 4em trimestre 2027.

Idéal pour une résidence principale, secondaire ou un investissement de qualité.
Contactez-nous pour plus d’informations ou pour réserver ce lot.

Caractéristiques de ce bien

  • Surface 57,57 m²
  • séjour 42 m²
  • 2 chambre(s)
  • 1 salle(s) de bain
  • 2 garage(s)
  • exposition Sud-Ouest
  • 1 niveau(x)

Diagnostics énergétiques

Consommation énergétique
A B C D E F G
Emission de gaz à effet de serre
A B C D E F G
DPE ANCIENNE VERSION

Informations financières

Prix de vente honoraires TTC inclus 321 600 €

Autour du bien

  • Commerces et santé
  • Loisirs
  • Ecoles
  • Transports
  • Pratique

Calcul des mensualités

* Champs obligatoires